首页 >  别墅图纸 > 中式别墅
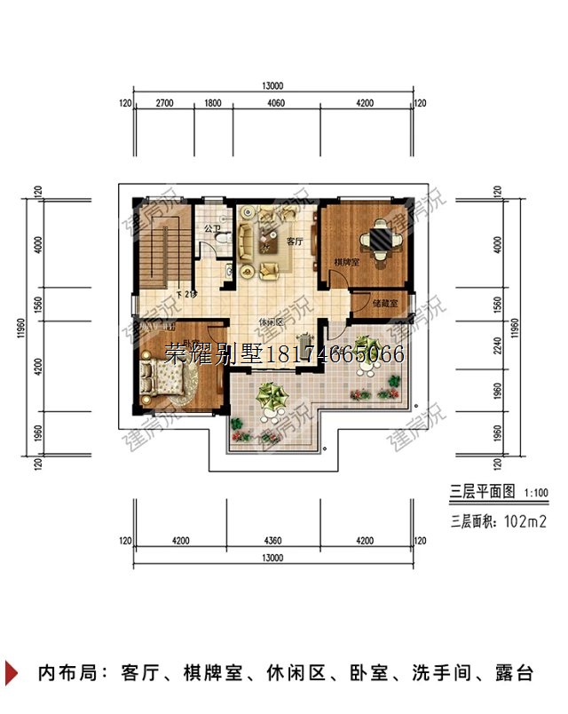
13*11*96米新中式三层别墅设计图
 2023-06-04 10:54:21    人评论    次浏览 分类:中式别墅

13*11*96米新中式三层别墅设计图