Toggle navigation
首页
走进荣耀
别墅案例
别墅图纸
别墅咨询
别墅招聘
别墅新闻
联系我们
企业新闻
行业新闻
别墅新闻
企业新闻
行业新闻
别墅热线
0746-8223678
扫一扫了解别墅
首页
>
别墅新闻
> 企业新闻
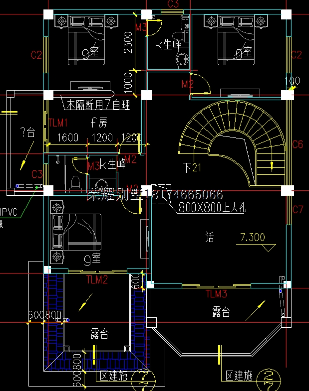
31-165号三层别墅全套设计图纸只要198元包邮!
2022-04-23 11:47:45
人评论
次浏览 分类:企业新闻
31-165号三层别墅全套设计图纸只要198元包邮!